三叶公园
来源: 时间:2022-05-02 16:00
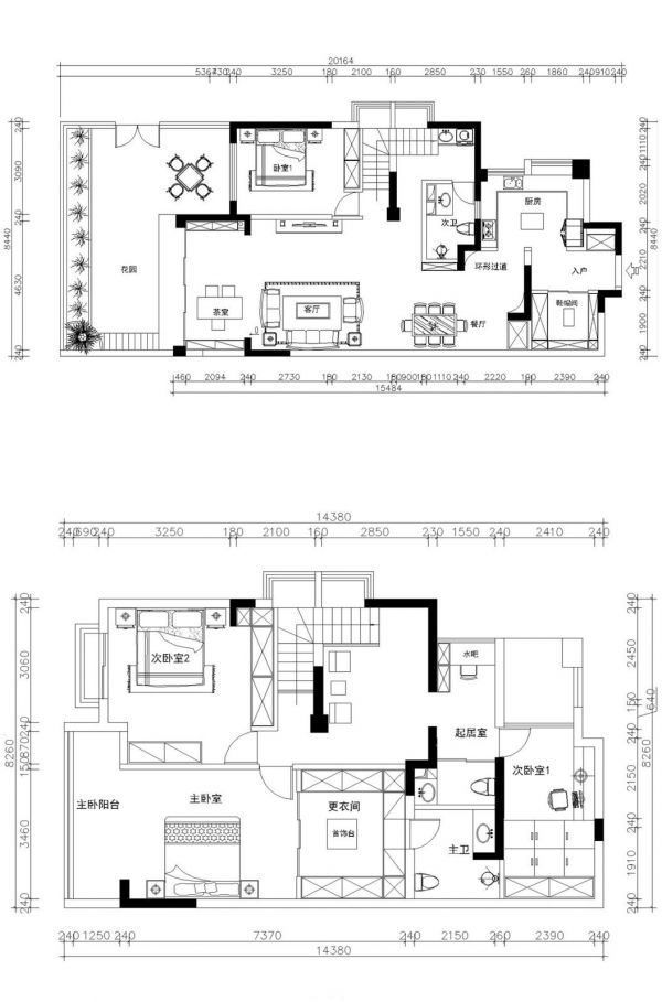
案例详情 原三房两厅两阳台格局; 优点:1、室内空间通透明亮,采光与采阳均非常充分;2、房子承重墙体占比少便于满足不同的需求补充;3、室内新建墙体墙体少,房间格局发挥空间大。 缺点:1、室内格局不适宜做生活阳台。2、较大的阳台在作为生活阳台使用时都会个相连空间造成影响;设计考虑:1、增添独立的生活间,靠东南面采阳充分;2、主卧功能划分由整到一的分隔,提供较大的舒适及便利。
墨绿色的餐椅点缀了整个空间,格栅设计背景墙显得更有质感
整体风格设计以白色简约为主,扑面而来的干净清爽气息!
充分利用入户空间做了一个开放式厨房,吧台也可做餐桌使用。整个空间看起来更通透
109平米 复式现代简约风格
109平米
相关知识
三叶公园
三叶家具——家具行业领跑者
成都三叶家具有限公司入选《崛起中国》栏目
多次流拍后 穿金路三叶轮胎厂地块以2.03亿元成功出让
快讯 | 三叶家具床垫产品耐久性抽检不合格
快讯 | 兴邦涂料、三叶家具监督抽查复查不合格
科技助力创新突破,欧普照明新一代风扇灯正式上市
2020政府采购办公家具十大品牌发布
2020中国学校家具十大品牌
正姿护眼笔 专利设计 书写体验更健康
推荐资讯
- 1穷人装修3万硬装怎么样,硬装 103752
- 2婆婆对儿媳说的暖心话 婆婆喜 90916
- 3女生戴14号戒指算粗吗 正常 90818
- 400后法定结婚年龄 结婚登记 65140
- 5燃气灶怎么选?跟随方太高效直 54635
- 6男生戴戒指的含义图解 女生戒 40372
- 7杨燕军 | 医院建筑的顶层设 35257
- 8泰安国悦山180平下跃美式风 28431
- 9克洛斯威墙面定制,约您共度— 23393
- 10积木家装修公司正规吗?选装修 22455
资讯热点排名