地下室、健身房、大露台,农村盖一栋这样的别墅到底多有面子?
经典户型之所以备受欢迎,除了细腻的外观设计之外,考究的布局也是一大亮点。今天给大家带来的这套户型,老粉们肯定会觉得很眼熟,好像之前见到过。没错7月29号发布的户型,便是初始户型。
而这一次作为北京付先生的新家,对原户型整体升级后再次出现在我们面前!对比原户型,升级后的住宅整体扩大了面积,采光与通风都有进一步的加强!
原始户型从ZJ—1642,升级为ZJ—1791,看看升级后的户型,是否更能吸引你的目光!

占地尺寸:18m×14m
占地面积:214㎡
建筑面积:628㎡
建筑高度:10.1m
建筑结构:框架结构
建筑情况:1厨房 1餐厅 1客厅 1储藏室 1设备间 4卫生间 6卧室 1大露台

平面布局图:
此户型自带地下室用作休闲空间,设计多间娱乐房,闲暇之余放松身心,宣泄压力。
不过地下室施工处理时,一定要“薄填多夯”,分层回填夯实,避免因基础底板发生不均匀沉降而出现裂缝,导致地下室渗水。

户型由东面入户,进来便是被花香鸟语包围的庭院,上三步台阶进入室内,大通透的格局将室外阳光与美景引入室内,空间敞亮不拥挤,可容纳多人会谈。
双卧设计给家人一个私密且安心的住所,父母房自带独立卫生间,次卧紧靠公卫,生活方便居住顺心。
考虑到业主家人多,逢年过节都有聚餐需求,因此特意设计双餐桌方便使用。另外加装电梯,上下楼更加便捷。

三层多卧室,不仅有高规格主卧设计,还增加了两间儿童房与玩具房,布局规整合理。
公共区域摆放健身器材便成为了锻炼区,起居室光照充足,展现美好生活新篇章。

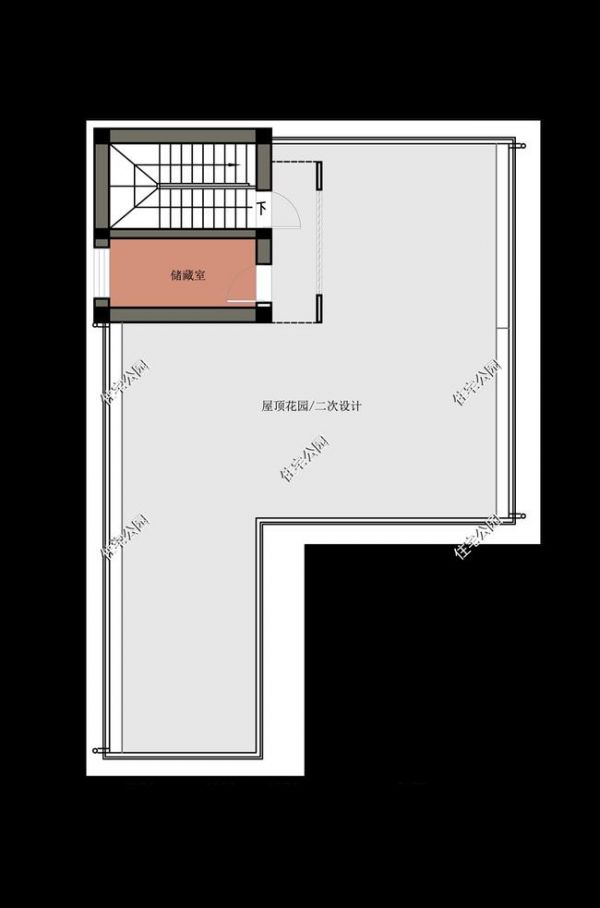
严格意义上来说,三层仅作为屋顶层展示,平屋顶最大的好处就是这块大平台可以有无数种改造方式,按照家人的喜好自行规划布置,满足多种用途。

原始户型如下:
占地尺寸:10.06m×15.06m
占地面积:151㎡
建筑面积:262㎡
建筑高度:9.9m
建筑结构:砖混结构

平面布局图:



关注本号,更多农村自建房户型图欣赏,还有建房小知识,一手掌握。
相关知识
农村二间二层半普通自建房图片 农村房屋这样盖绝对有面子
网络流传的98元领一栋别墅,采访发现背后竟有这样的“野心”
只需要一招,让你的别墅地下室排水无忧
如何打造高品质的别墅地下室?
我老家的房子盖好了!
别墅地下室改造排水难题如何解决?
浅谈一下别墅地下室排水使用污水提升器好处!
恒大金碧天下|少“墅”派的理想生活 纵情享受惬意岁月
别墅地下室改造如何解决排水难题?
农村10万自建房设计图 农村盖房10万可以盖2层吗
推荐资讯
- 1穷人装修3万硬装怎么样,硬装 104026
- 2婆婆对儿媳说的暖心话 婆婆喜 91408
- 3女生戴14号戒指算粗吗 正常 91310
- 400后法定结婚年龄 结婚登记 65177
- 5燃气灶怎么选?跟随方太高效直 54678
- 6男生戴戒指的含义图解 女生戒 40642
- 7杨燕军 | 医院建筑的顶层设 35750
- 8泰安国悦山180平下跃美式风 28913
- 9克洛斯威墙面定制,约您共度— 23433
- 10积木家装修公司正规吗?选装修 22929